TD、D斗式提升机产品介绍:
TD、D型斗式提升机适用于垂直输送粉状、粒状、及小块状的磨吸性较小的散状物料,如粮食、煤、水泥、碎矿石等,提升高度最高40m,其特点为:结构简 单,运行平稳,挖取式装料,离心重力式卸料,物料温度不超过60。C。TD型按JB3926-85《垂直斗式提升机》标准设计制造,与传统D型斗提机相 比,输送效率高,料斗形式多,应优先选用。您可以根据您的产量的大小选着合适的机型
注:此设备可以根据客户要求制作,材料多为不锈钢和碳钢。
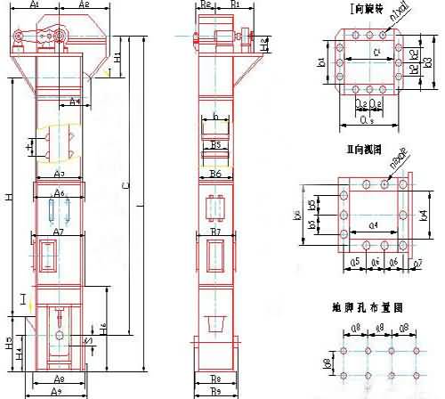
TD系列斗式提升机外形示意图:


TD系列斗式提升机主要技术参数:

TD系列斗式提升机安装技术参数表:




传动装置技术规范表:

